Задать вопрос

Задать вопрос о продукте:

Имя: E-mail: Вопрос:
Задать вопрос
Ваш вопрос отправлен. Мы свяжемся с Вами в ближайшее время. Пожалуйста, заполните все поля. Некорректный адрес E-Mail. Произошла ошибка. Повторите попытку позже.

Systemair Topvex FR06EL-L-CAV (снят с производства)

Купить Systemair Topvex FR06EL-L-CAV (снят с производства)

Цена
$0
Артикул: 2429
Количество
Заказ по телефону
+7 (495)-649-67-66

Агрегат Topvex FR06EL-L-CAV

• Компактный по высоте
• Различные способы монтажа
• Низкое энергопотребление
- энергоэффективные вентиляторы свободного напора с ЕС двигателями
• Эффективный роторный теплообменник
- не требует дренажа
- автоматический летний режим
• Встроенная, запрограммированная система автоматики
- Энергосберегающие функции
- Встроенный недельный таймер с планировщиком выходных дней
• Постоянное поддержание расхода или давления в воздуховодах
• Большие инспекционные двери для простого обслуживания
- Раздвижные двери, как дополнительная принадлежность
• Изготовлен из стальных листов в алюцинковым покрытием.
• Протестирован на заводе

Применение:
Topvex FR06EL-L-CAV - это энергоэффективный воздухообрабатывающий агрегат для общественных, административных и жилых зданий. Агрегат специально разработан в соответствии с требованиями к энергоэффективности, поэтому агрегат оснащен высокоэффективным роторным теплообменником и имеет низкое энергопотребление. Для упрощения монтажа и пуско-наладки агрегаты оснащены встроенной и сконфигурированной системой автоматики.

Монтаж:
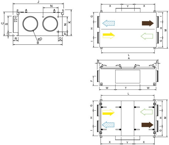
Уникальная конструкция со сдвоенным роторным теплообменником обеспечивает компактность агрегатов по высоте. Отсутствие необходимости отвода дренажа делает монтаж агрегатов более гибким. Topvex FR06EL-L-CAV может монтироваться в горизонтальном положении на полу дверями вверх, в подвешенном состоянии за подшивным потолком дверями вниз или в боковом положении на длинной стороне.

Конструкция:
Корпус агрегата Topvex FR06EL-L-CAV состоит из двух листов стали с алюцинковым покрытием, AZ 185, толщиной 1 мм и внутреннего слоя звуко- и теплоизоляции - минеральной ваты толщиной 40 мм. Две большие инспекционные двери упрощают осмотр и обслуживание. Вентиляторы и роторный теплообменник легко извлекаются для обслуживания. Приточный и вытяжной фильтры устанавливаются на направляющих и для обеспечения оптимальной герметичности оснащены уплотнительными лентами.
Все электрические соединения находятся в единой клеммной коробке, расположенной с длинной стороны агрегата, что существенно упрощает сервисное обслуживание.
Агрегат Topvex FR06EL-L-CAV возможен в следующем исполнении: с правосторонним и левосторонним обслуживанием, с электрическим или с водяным воздухонагревателями, системой автоматики стандартно с средствами связи Modbus и Exoline и через RS-485 и встроенным WEB сервером через TCP/IP; опционально LON.

Управление:
Агрегат Topvex FR06EL-L-CAV поставляется с комплектом заводской автоматики, включая пульт управления с 10 м кабеля. Автоматика запрограммирована и протестирована на заводе и полностью готова к работе. Присоедините агрегат к системе воздуховодов, при необходимости подсоедините внешние компоненты, подключите кабель электропитания, настройте таймер, задайте скорость вентилятора (0-100%) - и все! Агрегат готов к эксплуатации.

Технические даные:
Наименование продукции - Topvex FR06EL-L-CAV
Артикул (Код) - 2429
Напряжение - 400 В
Частота - 50 Гц
Фазность - 3N ~
Мощность, двигатели - 2 x 941 Вт
Мощность электрического нагревателя - 9.9 кВт
Диапазон расходов - 720...2567 м³/ч
Предохранитель - 3 x 20 A
Класс защиты корпуса - 23 IP
Фильтр, приточный воздух - F7     
Фильтр, вытяжной воздух - F5

Другое:
Вес - 275 кг

  • Доставка нужной вам транспортной компанией

  • Удобная оплата

Товар добавлен в корзину

Закрыть
Закрыть
×

Заказать обратный звонок

55,52,51,49,56,55,49,102,102,102,98,98,54,97,57,54,56,99,54,57,102,52,50,52,102,98,99,53,97,48,101,51
Нажимая на кнопку, вы даете согласие на обработку своих
персональных данных и соглашаетесь с политикой конфиденциальности
Спасибо за оставленную заявку!
Наш оператор свяжется с вами в ближайшее время