Агрегат Topvex FR03 HWL-L-VAV
• Компактный по высоте
• Различные способы монтажа
• Низкое энергопотребление
- энергоэффективные вентиляторы свободного напора с ЕС двигателями
• Эффективный роторный теплообменник
- не требует дренажа
- автоматический летний режим
• Встроенная, запрограммированная система автоматики
- Энергосберегающие функции
- Встроенный недельный таймер с планировщиком выходных дней
• Постоянное поддержание расхода или давления в воздуховодах
• Большие инспекционные двери для простого обслуживания
- Раздвижные двери, как дополнительная принадлежность
• Изготовлен из стальных листов в алюцинковым покрытием.
• Протестирован на заводе
Применение:
Topvex FR03 HWL-L-VAV - это энергоэффективный воздухообрабатывающий агрегат для общественных, административных и жилых зданий. Агрегат специально разработан в соответствии с требованиями к энергоэффективности, поэтому агрегат оснащен высокоэффективным роторным теплообменником и имеет низкое энергопотребление. Для упрощения монтажа и пуско-наладки агрегаты оснащены встроенной и сконфигурированной системой автоматики.
Монтаж:
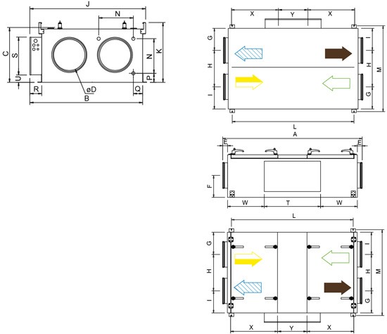
Уникальная конструкция со сдвоенным роторным теплообменником обеспечивает компактность агрегатов по высоте. Отсутствие необходимости отвода дренажа делает монтаж агрегатов более гибким. Topvex FR03 HWL-L-VAV может монтироваться в горизонтальном положении на полу дверями вверх, в подвешенном состоянии за подшивным потолком дверями вниз или в боковом положении на длинной стороне.
Конструкция:
Корпус агрегата Topvex FR03 HWL-L-VAV состоит из двух листов стали с алюцинковым покрытием, AZ 185, толщиной 1 мм и внутреннего слоя звуко- и теплоизоляции - минеральной ваты толщиной 40 мм. Две большие инспекционные двери упрощают осмотр и обслуживание. Вентиляторы и роторный теплообменник легко извлекаются для обслуживания. Приточный и вытяжной фильтры устанавливаются на направляющих и для обеспечения оптимальной герметичности оснащены уплотнительными лентами.
Все электрические соединения находятся в единой клеммной коробке, расположенной с длинной стороны агрегата, что существенно упрощает сервисное обслуживание.
Агрегат Topvex FR03 HWL-L-VAV возможен в следующем исполнении: с правосторонним и левосторонним обслуживанием, с электрическим или с водяным воздухонагревателями, системой автоматики стандартно с средствами связи Modbus и Exoline и через RS-485 и встроенным WEB сервером через TCP/IP; опционально LON.
Управление:
Агрегат Topvex FR03 HWL-L-VAV поставляется с комплектом заводской автоматики, включая пульт управления с 10 м кабеля. Автоматика запрограммирована и протестирована на заводе и полностью готова к работе. Присоедините агрегат к системе воздуховодов, при необходимости подсоедините внешние компоненты, подключите кабель электропитания, настройте таймер, задайте скорость вентилятора (0-100%) - и все! Агрегат готов к эксплуатации.
Технические даные:
Наименование продукции - Topvex FR03 HWL-L-VAV
Артикул (Код) - 3919
Напряжение - 230 В
Частота - 50 Гц
Фазность - 1 ~
Мощность, двигатели - 2 x 477 Вт
Диапазон расходов - 360...1285 м³/ч
Предохранитель - 10 A
Класс защиты корпуса - 23 IP
Фильтр, приточный воздух - F7
Фильтр, вытяжной воздух - F5
Другое:
Вес - 180 кг