Задать вопрос

Задать вопрос о продукте:

Имя: E-mail: Вопрос:
Задать вопрос
Ваш вопрос отправлен. Мы свяжемся с Вами в ближайшее время. Пожалуйста, заполните все поля. Некорректный адрес E-Mail. Произошла ошибка. Повторите попытку позже.

Frico UF602

Купить Frico UF602

Цена
€0
Артикул: K1041
Количество
Заказ по телефону
+7 (495)-649-67-66

Воздушная завеса Frico UF602 без функции обогрева предназначена для промышленного применения. Монтируется вертикально.

Завеса Frico UF602 разработана для защиты больших по площади входных групп. Максимальная площадь ворот, которые могут защитить завесы этой серии,- 6х12 м.

Для защиты широких проемов возможно устанавливать две завесы с одной или обеих сторон ворот.

Управление
Завеса Frico UF602 управляется при помощи пускового устройства UF602- системы управления SIRe Basic UF602, которая предусматривает:

- встроенную линию задержки между моторами при запуске,
- возможность включения через концевой выключатель при открывании дверей,
- встроенную термозащиту для каждого двигателя.

Отдельно приобретается дверной датчик - AGB304.

Монтаж
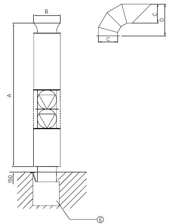
Напорная колонна может устанавливаться как внутри, так и снаружи помещения.

Необходимо обеспечить забор воздуха из помещения выше уровня ворот, в этих целях возможно удлинение входной трубы при помощи дополнительной секции.

Канальная конструкция Frico UF602 расположена в бетонном полу, проектируется заранее в соответствии с размером помещения. Поскольку размер желоба и щели выдува сугубо индивидуальны, они изготавливаются отдельно. Отверстие выдува должно быть расположено как можно ближе к дверному проему, быть несколько шире ворот и иметь направление 15 градусов в сторону двери.
Если устанавливаются две завесы с разных сторон проема, для получения оптимального эффекта необходимо разделить потоки встречного воздуха металлической перегородкой, установив ее в канальной конструкции. При опасности затопления помещения, необходимо включить в конструкцию дренаж.

Технические характеристики:
Тип - UF602
Артикул (код) - K1041
Тип монтажа - вертикальный
Тип - канальная
Обогрев - без обогрева
Ширина - 3900мм
Расход воздуха при max скорости - 12000 м3/ч
Мощность двигатеря - 11000 (2х5500)
Напряжение (двигатель) - 380Вольт
Сила тока (двигатель) - 22,4А
Высота монтажа - до 3 метров
Длина/Высота/Глубина - 3900x700x700мм
Класс защиты IP - IPX4
Сертификация - ГОСТ
Стандарт - CE
Производитель - Швеция, Frico
Гарантия - 3 года

  • Доставка нужной вам транспортной компанией

  • Удобная оплата

Товар добавлен в корзину

Закрыть
Закрыть
×

Заказать обратный звонок

55,52,51,49,56,55,49,102,102,102,98,98,54,97,57,54,56,99,54,57,102,52,50,52,102,98,99,53,97,48,101,51
Нажимая на кнопку, вы даете согласие на обработку своих
персональных данных и соглашаетесь с политикой конфиденциальности
Спасибо за оставленную заявку!
Наш оператор свяжется с вами в ближайшее время