Задать вопрос

Задать вопрос о продукте:

Имя: E-mail: Вопрос:
Задать вопрос
Ваш вопрос отправлен. Мы свяжемся с Вами в ближайшее время. Пожалуйста, заполните все поля. Некорректный адрес E-Mail. Произошла ошибка. Повторите попытку позже.

Решетка вентиляционная АДН 800х300+1КСР

Купить Решетка вентиляционная АДН 800х300+1КСР

Цена
€148,29
экономия 25%
€197,72
Артикул: adn800*300+ksr
Количество
Заказ по телефону
+7 (495)-649-67-66

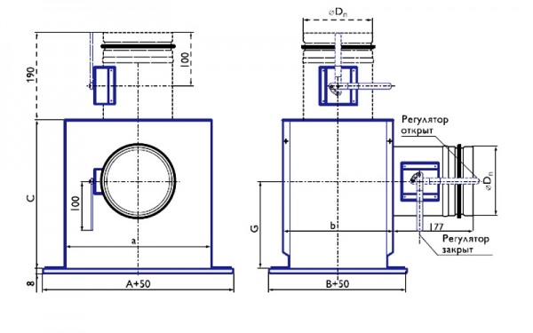
Боковой подвод: А=800мм, В=300мм, С=390мм, D=199мм, G=230мм, количество патрубков=2 шт, Масса: 13,4 кг
Торцевой подвод: А=800мм, В=300мм, С=300мм, D=199мм, количество патрубков=2 шт, Масса: 9,5 кг

Алюминиевая вентиляционная решетка АДН с КСР 800х300

Решетка АДН с камерой статического давления гарантируют равномерное истечение воздушного потока по сечению воздухораспределителей за счет резкого снижения скорости воздуха в камере.
Для регулирования расхода воздуха камеры статического давления 1КСР оснащены регулирующим устройством, которое устанавливается во входном патрубке.

Для вентиляционных решеток АДН изготавливаются камеры статического давления 1КСР, размеры которых определяются средней расчетной скоростью воздушного потока в них не более 1,5 м/с с учетом рекомендуемой производительности решеток.
Для улучшения технических характеристик камеры статического давления могут изнутри покрываться слоем теплозвукоизоляционного материала. При этом габаритные размеры камеры статического давления не изменяются. Изолирующая облицовка снижает шум на ~6 дБ, сокращает потери холода (тепла) приточного воздуха и предотвращает образование конденсата на поверхности КСР при температуре воздуха ниже точки росы.

Камеры статического давления 1КСР изготавливаются из оцинкованной стали. 1КСР имеют боковой подвод воздуха по большей стороне решетки или торцевой подвод.
При изготовлении алюминиевых вентиляционных решеток на заказ камеры статического давления 1КСР могут окрашиваться методом порошкового напыления в любой цвет по каталогу RAL.

Решетка вентиляционная АДН 800х300+1КСР - Характеристики

клапан расхода воздухаесть
Тип панели2ряда жалюзи (горизонтальные и вертикальные)
Монтажный размер по горизонтали800
Наличиепроизводство на заказ
Камера статического давленияКСР
Монтажный размер по вертикали300
Срок поставки в раб.днях20
Размер рамкистандартный (+5см)
  • Доставка нужной вам транспортной компанией

  • Удобная оплата

Товар добавлен в корзину

Закрыть
Закрыть
×

Заказать обратный звонок

55,52,51,49,56,55,49,102,102,102,98,98,54,97,57,54,56,99,54,57,102,52,50,52,102,98,99,53,97,48,101,51
Нажимая на кнопку, вы даете согласие на обработку своих
персональных данных и соглашаетесь с политикой конфиденциальности
Спасибо за оставленную заявку!
Наш оператор свяжется с вами в ближайшее время